
Westminster Ponds Center - Spring 2021
The purpose of this design was to redesign several old hospital buildings located around the Westminster Ponds area, on the grounds of Parkwood Hospital in London, Ontario for Re-Forest London. Each building was intended for a different use and one of the major focuses for this project was sustainability.
​
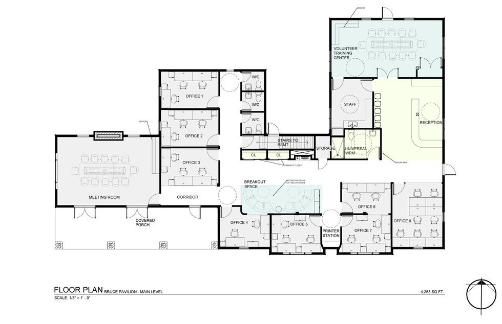
Myself and project partner, Corey Mason-Grant, worked together to design a community nature center that went above and beyond the clients demands. The redesign helps bring in different people for different purposes. Bruce pavilion houses the organizations office, Perth pavilion houses an Indigenous healing space with support spaces, and the main building, Wellington which is intended for tourism and larger events. This building houses an office space located on the mezzanine floor, as well as educational classrooms, rental shops, a cafe/ event space, and other support spaces. Each building was designed with sustainability in mind as that was the main intention for this project.















