
Rural to Urban Home - Spring 2020, Fall 2020
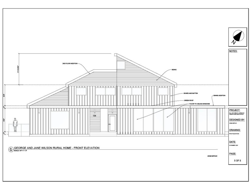
The purpose of this project was to design a rural residential home with sustainable features so it was self sustainable energy-wise. The entire building, exterior and interior was designed by myself. The exterior of the home was very important for the project as well as the interior of course.
Within this project it was important to understand how exteriors and full buildings are designed from scratch so that an ideal design of the exterior and interior complimented one another. Understanding how solar panels and how green energy could be used to create a self sustaining and energy efficient design was important. This home was then later moved to an urban site where a renovation was done to add a basement and other parts. This home design was also entered into a competition, judged by the London Home Builder's Association which has not yet been judged.
​
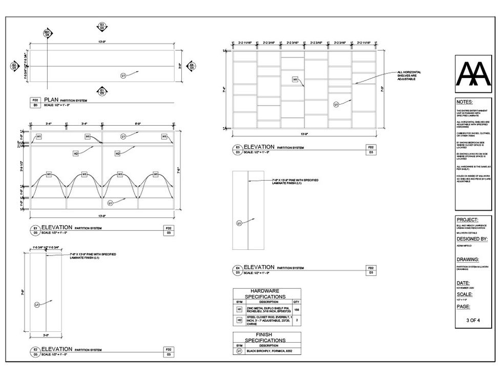
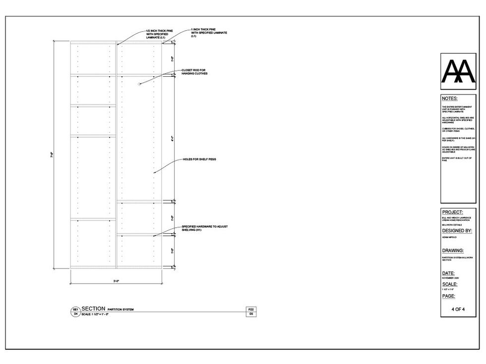
Below, are examples of the work that I produced for this project. Floor plans, exterior elevations, a section, site plans, millwork package, and a built model can all be viewed. Each image also has a caption explaining it further and highlights what program was used to create that piece of work and has a PDF link where applicable for better viewing. The images are presented in order from original rural home design to the renovation into the urban home.




























